영통역 자이 프라시엘 분양가
영통역 자이프라시엘 분양가
삼성디지털시티가 차로 5분
대표 ‘반도체 클러스터’ 인근 아파트

GS건설이 경기 용인시 영통·망포역 인근에 ‘영통역자이 프라시엘’을 이달 분양합니다.
많은 분들이 관심을 가지고 있는 지역의 아파트인데요. 영통역자이프라시엘 분양가에 대해 알아보았습니다.
먼저 영통역자이프라시엘이 들어서는 대지위치는 용인시 기흥구 서천동 335-2 일원에 들어섭니다.
‘영통역자이 프라시엘’은 지상 최고 23층의 6개 동에 총 472가구 규모입니다.
* 전용면적별 일반분양 세대수
84㎡A 201세대
84㎡B 109세대
84㎡C 107세대
84㎡D 35세대
100㎡ 20세대
총 472 세대

타입은 84㎡가 452가구, 100㎡ 20가구로 구성되는데요. 입주는 2026년 하반기 예정입니다.
반도체 생산 시설 등 첨단 산업 분야 기업들이 밀집한 지역에 들어서는 아파트다 보니 주변으로 대규모 산업 단지도 예정돼 있는 만큼, 실수요자들의 관심이 클 것으로 기대되며 수요가 많은 만큼 프리미엄도 기대할 만 한 지역입니ㅣ다.
비규제지역 프리미엄
전매제한6개월
재당첨제한 無

반도체 단지 인근 아파트 프리미엄
GS건설의 ‘영통역자이 프라시엘’은 직주근접(職住近接) 아파트로 교통과 생활 인프라 등 생활 여건을 잘 갖추고 있는데요.
가장 큰 특징은 우수한 직주근접 여건으로 볼 수 있습니다. 삼성전자 본사인 수원 삼성디지털시티와 삼성전자나노시티 기흥캠퍼스가 가까이 있어, 자동차로 5분 남짓이면 닿을 수 있습니다.
삼성디지털시티는 삼성전자 계열사와 협력업체가 모여 산업 벨트가 형성된 대규모 산업 단지입니다.

이 지역은 국내 대표적인 반도체 클러스터로 꼽힙니다.
삼성디지털시티뿐 아니라 삼성전자 기흥캠퍼스, 화성 동탄신도시 삼성전자 나노시티 화성캠퍼스 등이 자리하고 있는데요. 그 인근에는 삼성전자가 세계 최대 규모의 시스템 반도체 클러스터 조성을 추진하고 있습니다.
향후 반도체 관련 협력업체와 스타트업들이 인근 지역에 계속 입주할 가능성이 높습니다. 이런 수요가 많아지면 당연히 프리미엄 형성도 될 수 밖에 없는 구조입니다.

교통여건
교통 여건또한 우수한데요. 수인분당선 영통역까지 10분 정도면 걸어서 이용할 수 있습니다.
2024년 개통 예정인 GTX-A 용인역도 이용 가능한 거리에 있습니다. 이뿐아니라 광역 버스정류장이 단지와 인접해 있어 서울 강남권 접근도 편리합니다.
청명 IC를 통해 용인서울고속도로, 경부고속도로를 이용할 수 있으며 주변에 기업들의 입주가 계속 이어지는 만큼, 교통 인프라도 꾸준히 확대될 것으로 예상됩니다.

편의시설
영통·망포역 생활권에 있는 만큼, 단지 주변으로 편의 시설이 잘 갖춰져 있ㅅ습니다. 홈플러스 수원영통점, 롯데마트 영통점을 걸어갈 수 있는 거리입니다.
수원 프리미엄아울렛도 차량으로 15분 정도면 이동할 수 있습니다. 한림대학교 동탄성심병원과 아주대학교 병원 등 대형 의료시설도 인근에 있습니다. 주변에 서천초등학교와 서천중학교, 서천고등학교 등이 있습니다.



호수와 산책로가 가까워 생활 환경이 쾌적합니다. 기흥호수공원 둘레길과 반달공원이 인근에 있고, 수원어린이교통공원이 가깝습니다. 또 경희대학교 국제캠퍼스가 지척에 있어 다양한 학교 시설과 대학가의 편의 시설을 이용할 수 있습니다.

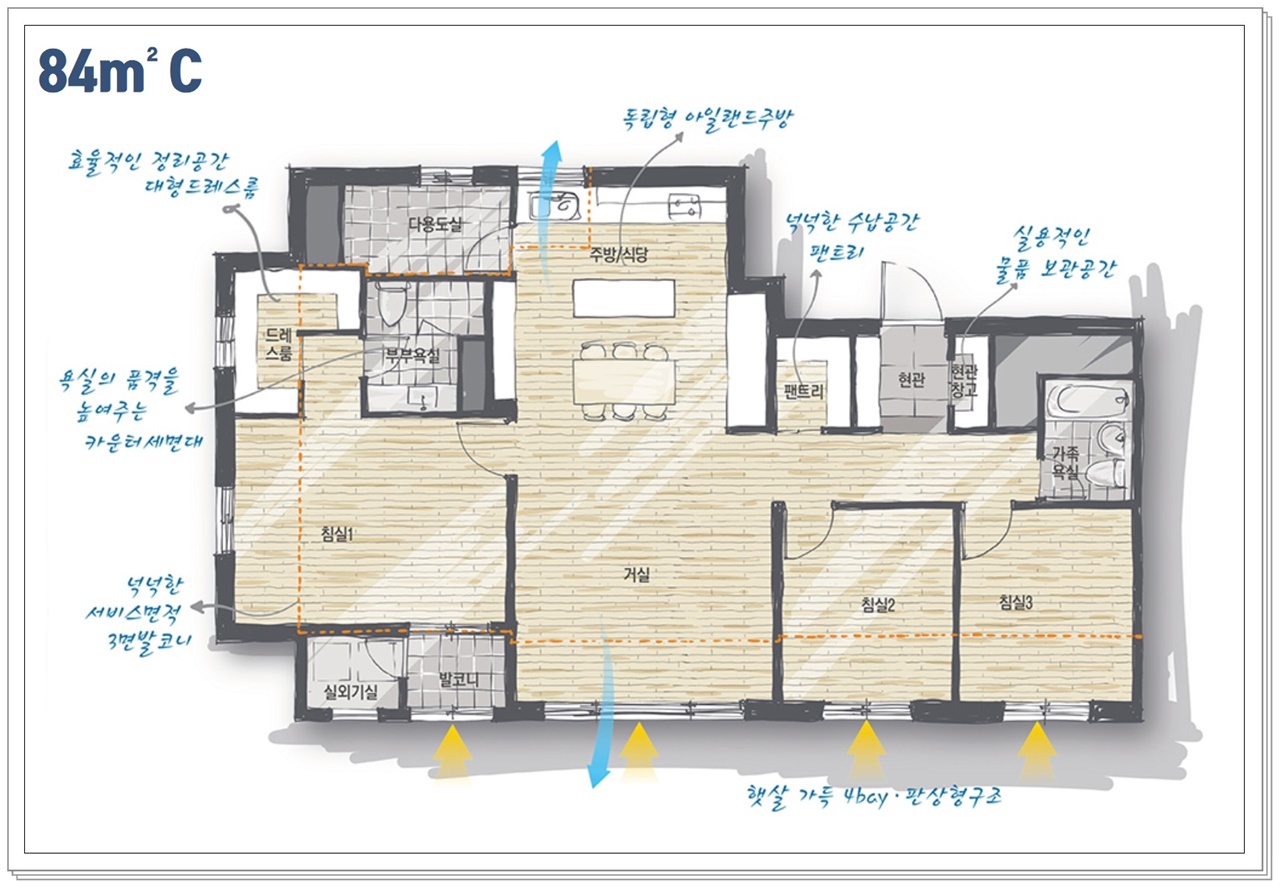
모든 가구 남향 배치
‘영통역자이 프라시엘’은 다양한 특화 설계로 구성되는데요. 전 가구를 남향 위주 4베이 판상형 구조로 설계했으며, 3면 발코니(일부 타입 제외)를 적용했습니다.


또 단지 내 입주민 편의를 위한 커뮤니티센터 ‘클럽 자이안’에는 스카이라운지, 피트니스클럽, 골프 연습장 등 다양한 커뮤니티 시설이 들어설 계획입니다.
주거 선호도가 높은 영통·망포 생활권 단지에 주변 신규 아파트 공급이 부족해 분양 전부터 관심이 많아보입니다.
수요자들의 기대가 높은 단지인 만큼 지역을 대표하는 단지가 될 것으로 기대되는 아파트입니다.

영통역자이프라시엘 분양가는 평당 2400만원 정도 예상하고 있습니다.
물론 입주자 모집공고가 나오면 더 정확히 알수 있지만요..
#영통역자이프라시엘분양가,
내년부터 30가구 이상 아파트는 제로에너지 필수 건축 의무화로 건축비가 올라 내년 신규 아파트 분양가가 대폭 오를 전망입니다.
올해 마지막 분양아파트 '영통역자이 프라시엘' 이 될것으로 보여집니다. 아직 전반적인 경기는 풀리지 않았지만 건축비가 올라 분양가격이 오를 수 밖에 없다고 합니다.

내년부터 사업승인 받는 아파트는 무조건 제로에너지 인증을 받아야 사업승인이 나오기 때문에 이번에 놓치면 더 힘들어질것으로 보여집니다.
입주자모집공고 2023년 12월 29일(금) 예정
견본주택 개관 2024년 1월 5일(금) 예정
특별공급 청약일 2024년 1월 8일(월) 예정
1순위 청약일 2024년 1월 9일(화) 예정
당첨자 발표일 2024년 1월 16일(화) 예정
영통역자이프라시엘 진행사항입니다.
모두 예정이라 변동사항 있을 수 있으니 더 상세한 내용은 홈페이지를 참조 하시고 관심고객 등록을 남기시면 최신정보를 실시간 문자로 안내해 드리며, 관심고객등록 하신 고객님께는 상품권과 여러모로 혜택이 주어집니다.
관심고객등록 기간이 얼마남지 않았으니 바로 등록하세요.
문의 1660-1132
#영통역자이프라시엘,#영통역자이프라시엘분양가,#영통역자이프라시엘견본주택,#서천동자이
