티스토리 뷰
평택 칠괴 동문디이스트 메가플렉스 지식산업센터 분양 소식입니다. 모델하우스 직통 1877-9610


평택은 거대 삼성반도체가 있어 지식산업센터가 열렸다 하면 완판행진이 이어지고 있습니다. 평택 삼성반도체 p3공장이 올 연말에 준공되며, p4공장이 내년 5월에 준공 예정이다 보니 지식산업센터 평당가도 계속 오르는 중에 있습니다. 특히 원자재값 상승과 평택 땅값 상승이 급속도로 상승하다보니 평택 동문디이스트 메가플렉스 지식산업센터 이후엔 평당가 1000만원 이상 육박할듯 합니다.
평택은 지속적인 인구 유입으로 부동산 상승이 높아 기대해볼만 한 지역입니다.

이번에 분양하는 평택 칠괴동(평택 쌍용자동차 바로 뒷편)에 위치한 동문디이스트 메가플렉스는
'특화시설'이 잘 갖추어져 있어 비교대상이 없습니다.
사업소개
평택 동문디이스트 메가플렉스 지식산업센터 대지위치는 평택시 칠괴동 577-6 번지이며, 연면적이 6만여평의 메머드급 규모입니다. 지하1층 ~ 지상19층 초 고층으로 혁신적인 설계, 넓은 건축규모, 내부시설 까지 평택을 대표하는 평택시 대표 지식산업센터가 됩니다. 대지면적은 9,958평 약 1만평에 건축면적은 5,280평 으로서 평택 지제역 인근 최.대규모 입니다.

규모를 살펴보면 연면적이 약6만여평의 메머드급 규모입니다. 지하1층 ~ 지상19층 초 고층으로 혁신적인 설계, 넓은 건축규모, 내부시설 까지 평택을 대표하는 평택시 대표 지식산업센터가 됩니다. 대지면적은 9,958평 약 1만평에 건축면적은 5,280평 입니다.
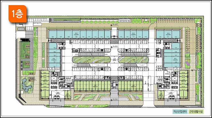
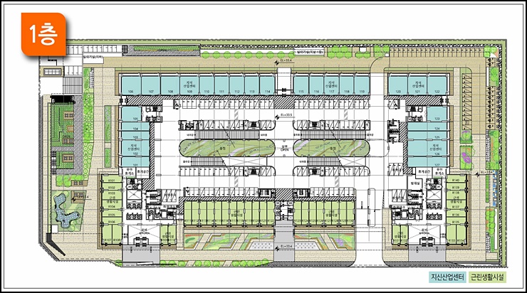
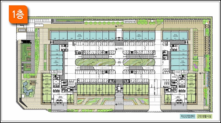
지상 2층~7층 까지 드라이브인으로 설계되며 8층~19층 까지 업무형 오피스로 설계됩니다. (1층 근린생활시설) 가장 주목되는 '특화시설' 로는 입차 및 출차 전용 램프로 한번에 2개층 직선형으로 공급됩니다. 총 1,100개 호실중 주차대수는 1,503(법정대비 330%) 지역 내 최대 규모의 주차 대수 확보 했습니다.
입지분석
평택 동문 디이스트 메가플렉스 지식산업센터 입지에 대해 알아보았습니다. 평택 삼성반도체와 브레인시티 중간에 위치하며, 지제역과도 멀지 않은 거리에 위치합니다. 특히 평택지제역은 GTX-C, GTX-A 노선이 연장 추진중에 있어 향후 서울역까지 40분으로 단축될 예정이며 청량리 역까지 48분으로 단축됩니다 (국철1호선으로 현재 2시간 소요) 서울 수서역으로는 SRT노선은 평택지제역에서 서울 수서역까지 20분입니다.
또한 경기 최대 규모이며 4차 산업을 선도하고 있는 경기 최대 규모의 브레인시티가 들어설 예정에 있어 경제적인 파급효과나 많은 일자리가 창출될 전망입니다.

평택 지제역의 운행 열차가 다니고 있기 때문에 KTX 한국 고속철도는 물론 SRT까지 누리실 수 있습니다. 그 외에도 부가적인 누리호나 ITX 청춘 등 많은 기차들이 다니기 때문에 지방이나 외부로 나가실 때도 보다 효율적인 이동이 가능합니다. 또한 서해안 복선전철 안중역이 마련이 되어 있는데요. 이는 시속 230km의 고속화 철도이며 정거장이 적어 역세권 주변발전 가능성이 있습니다. 서해 지역 간으로 이동이나 서울 접근성 또한 획기적으로 높아질 것으로 보이는 추세입니다.
더 나아가서는 GTX-A나 C의 노선 또한 연장될 예정이기 때문에 트리플 고속 철도망을 갖출 것으로 예상이 되고 있는데요. 경기권에 대한 부정적인 교통인식을 가지고 계셨던 분들 또한 이 부분들을 고려했을 때 그런 인식을 바꾸시는데에 보다 도움을 많이 받으실 수 있을 것 같습니다.
차량으로는 평택동부 고속화도로가 2024년 말에 완공을 앞두고 있기 때문에 용서 고속도로와 연결이 되면서 서울까지 빠르게 오고 갈 수 있는데요. 그렇기 때문에 직장이 평택이 아닌 서울에 있으신 분들 또한 자유롭게 출퇴근을 하실 수 있다는 장점이 있습니다.


특화시설
가장 주목되는 '특화시설' 로는 입차 및 출차 전용 램프로 한번에 2개층 직선형으로 공급됩니다. 평택 동문디이스트 메가플렉스 지식산업센터는 '특화시설'이 잘 갖추어져 있어 비교대상이 없습니다.
특히 녹색건축인증(우수 그린2등급)을 받은 동문 디이스트 메가플렉스는 대한민국이 온실가스 배출량 세계7위 로서 환경파괴를 최소화하고 온실가스를 최소화 할 수 있는 녹색건축으로 에너지 이용 효율 및 신생재생 에너지의 사용 비율이 높고 온실가스 배출을 최소화하는 건축물을 실천합니다.

특히 활력충전을 위한 넓은 옥상정원은 약 3천여평 (축구장1.5배)에 퍼팅장, 조깅트랙, 산책로, 휴게공간을 조성하여 입주기업 직원들에게 여유로운 휴식 제공합니다. 또한 스마트한 커뮤니티 지원시설 약1200여평 의 공간에 유아휴게소, 휴게소, 커뮤니티 라운지, 전시홀 등 총42개소 설치하여 업무 효율성 증대합니다.

요즘 지식산업센터의 경우는 대부분 아파트와 마찬가지로 녹지조성이 잘 되어 있는 곳이 많은데요. 특히 이 평택 동문 디이스트 메가플렉스의 경우에는 녹색건축 예비 인증의 자연 친화적인 지식산업센터로 건축이 될 예정이기 때문에 업무를 하시는 분들에게도 굉장히 쾌적한 공간이 될 수 있습니다.
빠르게 수요도가 오르고 있는 전기차들을 대비해 전기차 충전시설을 80곳으로 대폭 늘렸으며 1,500대가 주차가 되는 주차공간을 통해 주차에 대한 불편함을 해소했습니다.
또한 전기차 이용자 불편 없고 주차 전쟁 없는 평택동문 디이스트 메가플렉스 지식산업센터
80개소 전기차 충전시설과 1500여대 주차공간을 확보 했습니다.

평택 칠괴동 지식산업센터 동문 디이스트 메가플렉스의 가장 큰 장점은 200미터 이상의 가로폭으로 건물의 가시성과 상징성을 극대화하고 일반형 전용주차공간 한바퀴로 4층을 이동할 수 있는 드라이브인 시스템을 실현하며, 제조형 드라이브인이 한꺼번에 2개층 일직선으로 가능합니다.


자연 친화적인 설계로 관목 약 6만여주(상록/관목)와 초화류 5만본을 식재한 힐링공간 조성과 약 3천여평(축구장1.5배)의 녹생 공원같은 옥상정원을 평택에서 가장 自然스러운 친환경 지식산업센터를 실현합니다.


현재 선착순 사전의향서 접수중이니 모델하우스 방문 및 사전의향서 제출처는 아래 직통번호로 해주시고 모바일에서 클릭하시면 모델하우스로 자동연결 됩니다.
'부동산 정보' 카테고리의 다른 글
| 평택 마제스트타워 전매안내 1877-9610 (0) | 2022.08.28 |
|---|---|
| KG그룹, 평택쌍용차 인수 300억 추가 투입 (0) | 2022.08.13 |
| TSMC-애플 대항마로 부각 (0) | 2022.05.21 |
| 평택 삼성반도체 윤석열 대통령 연설문, 바이든 대통령 연설문 (0) | 2022.05.21 |
| 미국 조 바이든 삼성전자 평택 반도체 공장 찾는 이유 (0) | 2022.05.18 |
- Total
- Today
- Yesterday
- 김정은
- 정상회담
- 구혜선
- 평택브레인시티
- 지제역쌍용
- 코로나바이러스
- 평택삼성반도체
- 지제역지식산업센터
- 로또꿈
- 현빈
- 트럼프
- 국민연금
- 손흥민
- 정유미
- 토트넘
- 오목교역스카이하임
- 영화기생충
- 베이킹소다
- 송정역서희스타힐스
- 부천지식산업센터
- 평택지식산업센터
- 미스터트롯
- 문재인
- 똥꿈
- 토스
- 방탄소년단
- 방광염
- 남북정상회담
- 목동지역주택조합
- 영통역자이프라시엘
| 일 | 월 | 화 | 수 | 목 | 금 | 토 |
|---|---|---|---|---|---|---|
| 1 | ||||||
| 2 | 3 | 4 | 5 | 6 | 7 | 8 |
| 9 | 10 | 11 | 12 | 13 | 14 | 15 |
| 16 | 17 | 18 | 19 | 20 | 21 | 22 |
| 23 | 24 | 25 | 26 | 27 | 28 | 29 |
| 30 |
